14959 Trebbin OT Thyrow

Baugrundstück mit erteilter Baugenehmigung.

Angeboten wird ein Grundstück in der Talstraße 16 mit genehmigtem Neubau eines Wohnhauses mit zwei Einheiten. Der Planstand liegt vor, vier Stellplätze sind vorgesehen, und das Grundstück ist nach Eigentümerangabe beräumt und eben.

Beispielbild der straßenseitigen Vorderansicht des Projekts in Thyrow
Beispielbild / unverbindliche Visualisierung der straßenseitigen Vorderansicht.
Grundstück 984 m²

Flurstücke 146 und 743 laut Kaufvertrag und Grundbuch.

Baugenehmigung 2 WE

Genehmigter Neubau eines Wohnhauses mit zwei Einheiten.

Stellplätze 4

Straßenseitig im genehmigten Stand vorgesehen.

Kaufpreis 420.000 EUR

Angebotsbasis inklusive genehmigtem Planstand.

Beispielbild der rückwärtigen Gartenansicht des Projekts in Thyrow

Objektprofil

Ein genehmigtes Projekt mit klarer Außenwirkung und sofort lesbarer Vermarktung.

Das Angebot richtet sich an Käufer, die nicht bei null mit Vorplanung und Genehmigung beginnen möchten, sondern einen bereits genehmigten Wohnstandort im Berliner Umland suchen.

  • Erteilte Baugenehmigung für ein Wohnhaus mit zwei Einheiten
  • Vier Stellplätze im genehmigten Stand vorgesehen
  • Grundstück nach Eigentümerangabe beräumt und eben
  • Innen- und Außenbeispielbilder für die Vermarktung vorhanden
  • Geeignet für Bauträger, Projektentwickler oder private Bauherren

Unterlagen

Der Plan- und Genehmigungsstand ist nachvollziehbar dokumentiert.

Vorhanden

  • Baugenehmigung mit genehmigten Plänen
  • Grundbuchstand / Grundbuchauszug vorhanden
  • Vermessung und Lageplan
  • Bodengutachten
  • Weitere technische Unterlagen auf Anfrage

Hinweise

  • Maßgeblich sind ausschließlich die Originalunterlagen
  • Angaben zum Grundstückszustand nach Eigentümerangabe
  • Genehmigter Stand ist Grundlage des Angebots
  • Unterlagenzugang für qualifizierte Interessenten
Genehmigter Lageplan des Projekts Thyrow
Genehmigter Lageplan aus dem Bauantrag.

Grundstückszustand

Beräumt und eben.

Nach Eigentümerangabe ist das Grundstück heute frei von den früheren Bestandsobjekten und für die weitere Entwicklung vorbereitet.

Planungsqualität

Genehmigung und technische Grundlage bereits vorhanden.

Der Wert des Angebots liegt in der Kombination aus Grundstück, genehmigtem Projektstand und vorhandenen technischen Unterlagen.

Standort

Thyrow verbindet ruhiges Wohnumfeld mit Nähe zum Berliner Raum.

Das Grundstück liegt in Trebbin OT Thyrow im Landkreis Teltow-Fläming. Die Lage ist geprägt von wohnorientierter Einfamilienhaus- und Gartenstruktur und eignet sich für eine realistische Wohnentwicklung.

  • Adresse: Talstraße 16, 14959 Trebbin OT Thyrow
  • Landkreis Teltow-Fläming, Brandenburg
  • Wohnorientiertes Umfeld mit Einfamilienhaus- und Gartenstruktur
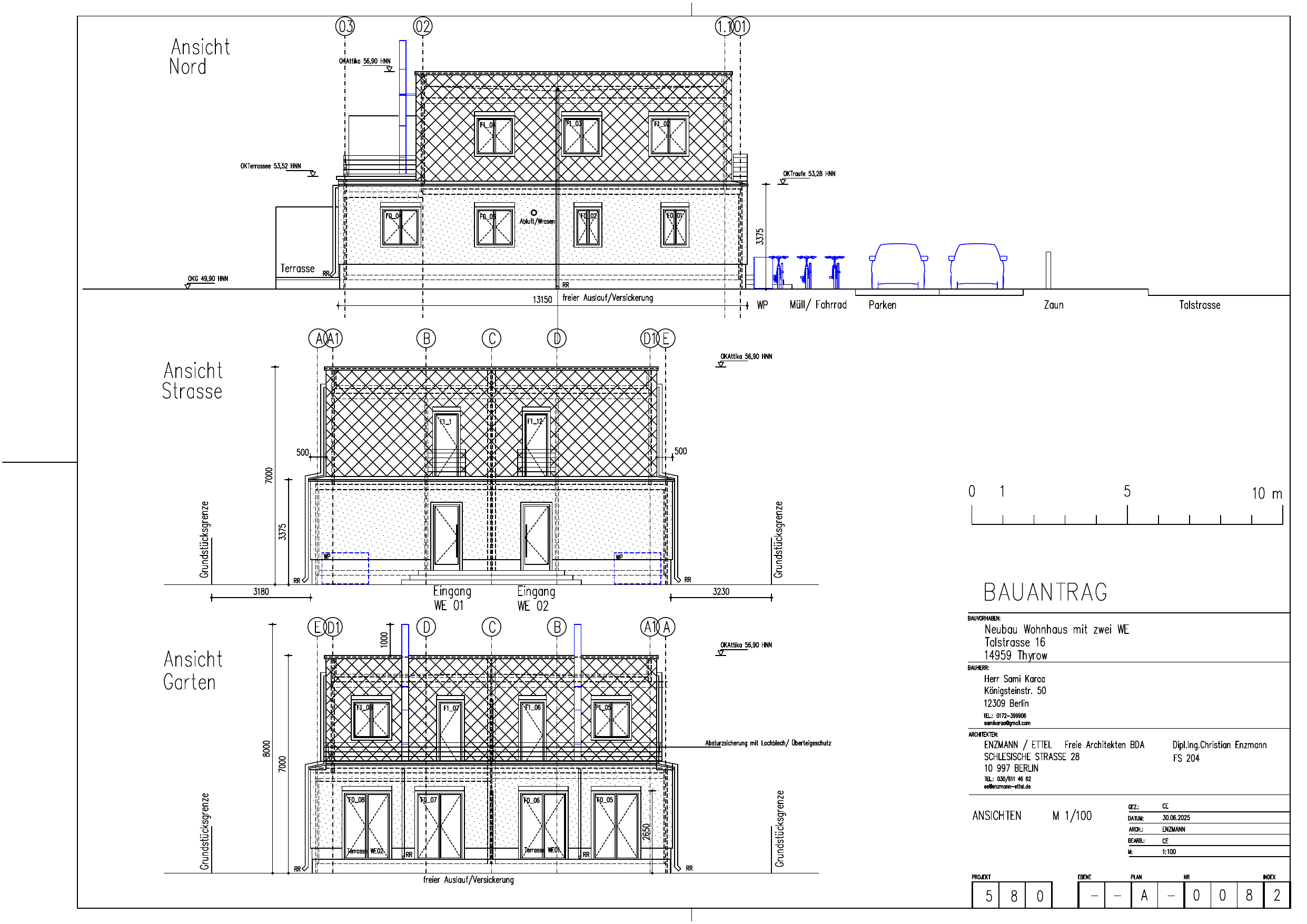
Genehmigte Ansichten des Vorhabens in Thyrow
Genehmigte Ansichten aus dem Bauantrag.

Kontakt

Exposé anfordern und weitere Unterlagen abstimmen.

Für qualifizierte Interessenten können Genehmigungsunterlagen, Lageplan und weitere technische Dokumente gebündelt bereitgestellt werden.

Maßgeblich sind ausschließlich die genehmigten Pläne, Bescheide und Vertragsunterlagen. Beispielbilder / Visualisierungen dienen nur der Illustration einer möglichen Ausgestaltung. Angaben zum aktuellen Grundstückszustand beruhen auf Eigentümerangaben.